
Welcome to Studio33:3
Studio33:3 is a state-of-the-art recording studio on the Grand Rapids First campus, designed to capture the worship and songs of the next generation.

We partnered with Haverstick Designs to help us create an inspiring space that maintains the highest acoustic standards and is a visually captivating environment.

Designed for Creatives
Studio33:3 is a space built for creatives. With our SSL Duality console, extensive outboard gear, and world-class microphone selection, you’ll have everything needed to help you produce your best work.

Studio33:3 is inspired by the life and legacy of Sarah J. Rijfkogel, whose passion was that the next generation would know and worship Him.

Pure Inspiration
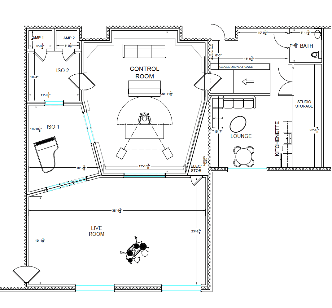
Studio33:3 offers 2,600 square feet of premium recording space. At the heart is a large, fully outfitted control room. ISO 1 houses a Yamaha 9-foot Grand Piano, while ISO 2 is ideal for vocals or capturing the intimate nuances of any instrument. Dedicated amp rooms and a spacious live room allow you to make your sound as big as your vision.

Our video gear and skilled crew are ready to bring your next live project to life. Whether it’s a full-band music video or an intimate acoustic set, we’ll help you capture the moment.
An inspiring space to spark your creativity, bring your team for a writing retreat and demo your next songs or album in an environment designed for artists like you.



